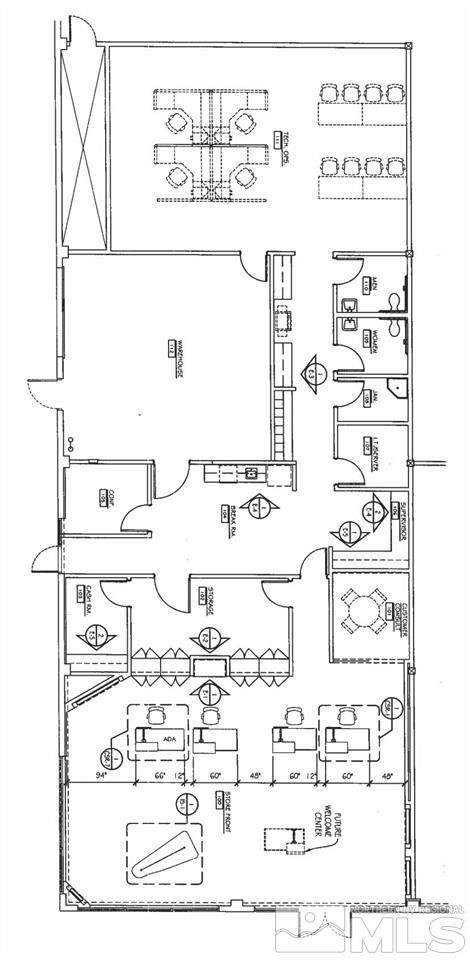
Description
3837+- sq ft ($1.20/sq ft + CAM) Bright corner end cap retail/office/showroom and drive-in warehouse with roll-up door. Can be combined with 3737 N. Carson. Great visibility! Lots of parking. This busy center is on the corner of N Carson Street and College Parkway. Access from both College Parkway and N Carson. Center tenants include Sherwin Williams, Port of Subs, and more in this established center. Near Western Nevada College WNC, Carson Tahoe Hospital, Silver Oak Golf Course, hotels, & restaurants., Across from Save Mart, Frontage on North Carson. Easy access to I-580, Hwy 50E, located on Business 395. Ample cross parking. The listing rate may not include certain utilities, building services & property expenses. This is a Gross Modified (GM) lease, the tenant pays base rent & a proportional share of some of the other costs associated with the property, such as taxes, utilities, insurance, and maintenance monthly. In addition to the base rent and unit-specific utilities. Common Area Maintenance (CAM) CAM is reviewed annually, water, sewer, and common building expenses are included in CAM. Some units share gas and electric meters where costs are billed monthly.
-
0BEDS
-
1.82ACRES
-
0BATHS
-
01/2 BATHS
-
3,837SQFT
-
$1$/SQFT
School Ratings & Info
Description
3837+- sq ft ($1.20/sq ft + CAM) Bright corner end cap retail/office/showroom and drive-in warehouse with roll-up door. Can be combined with 3737 N. Carson. Great visibility! Lots of parking. This busy center is on the corner of N Carson Street and College Parkway. Access from both College Parkway and N Carson. Center tenants include Sherwin Williams, Port of Subs, and more in this established center. Near Western Nevada College WNC, Carson Tahoe Hospital, Silver Oak Golf Course, hotels, & restaurants., Across from Save Mart, Frontage on North Carson. Easy access to I-580, Hwy 50E, located on Business 395. Ample cross parking. The listing rate may not include certain utilities, building services & property expenses. This is a Gross Modified (GM) lease, the tenant pays base rent & a proportional share of some of the other costs associated with the property, such as taxes, utilities, insurance, and maintenance monthly. In addition to the base rent and unit-specific utilities. Common Area Maintenance (CAM) CAM is reviewed annually, water, sewer, and common building expenses are included in CAM. Some units share gas and electric meters where costs are billed monthly.
© 2026 Northern Nevada Regional Multiple Listing Service® MLS. All rights reserved. Information is deemed reliable but is not guaranteed accurate by the MLS or Theresa Nelson Real Estate | Sierra Sotheby's International Realty. Real estate listings held by brokerage firms other than Theresa Nelson Real Estate | Sierra Sotheby's International Realty are marked with the BROKER RECIPROCITY logo or the BROKER RECIPROCITY thumbnail logo and detailed information about them includes the name of the listing brokerage. The data relating to real estate for sale on this web site comes in part from the BROKER RECIPROCITY Program of the Northern Nevada Regional MLS and is for consumers' personal, non-commercial use and may not be used for any purpose other than to identify prospective properties consumers may be interested in purchasing. Data last updated: 2026-02-14T08:19:35.99.