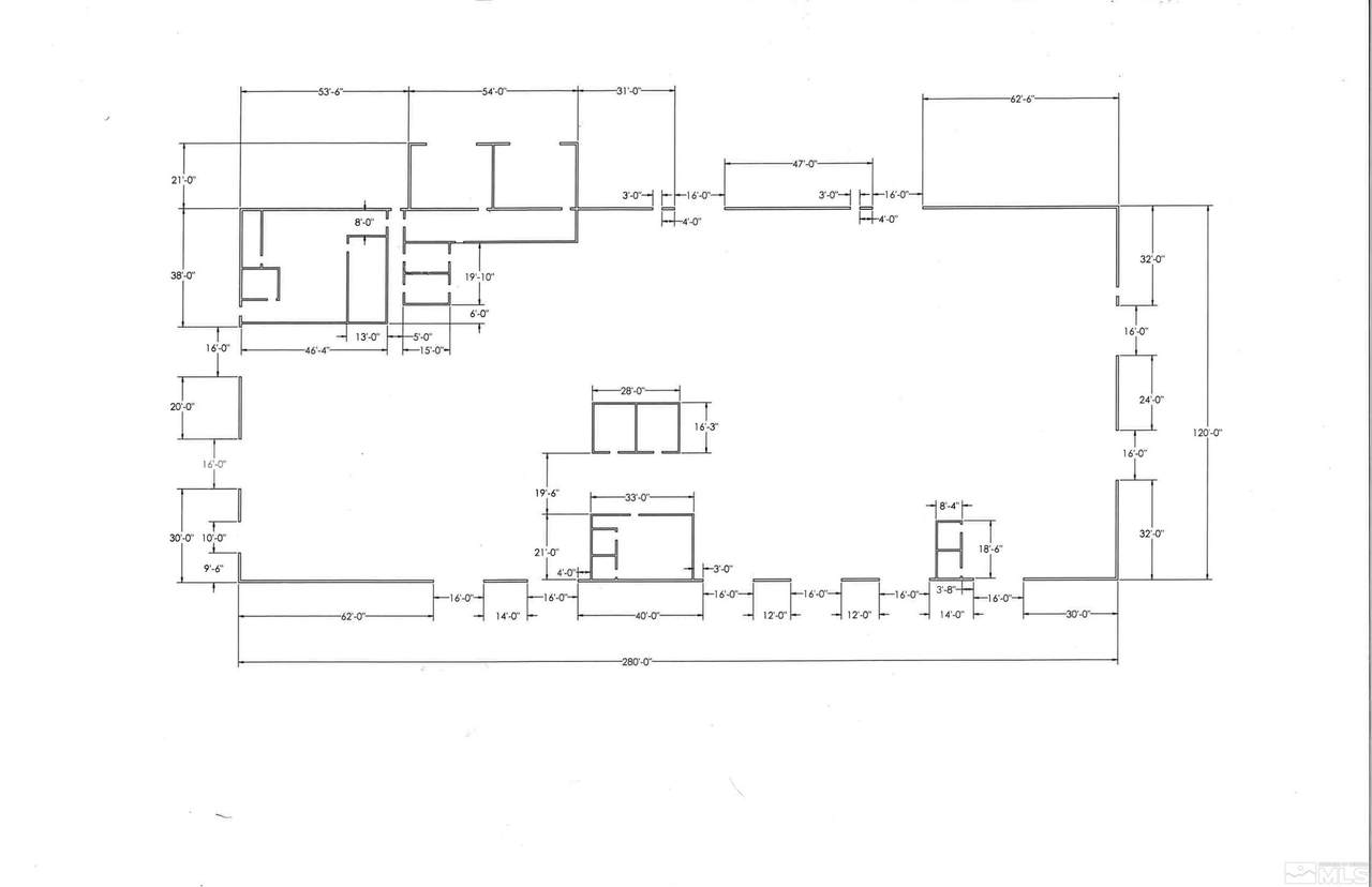
Description
Large Industrial Warehouse conveniently located off of Highway 50 and Highway 341. Situated on 3.9 acres. Sprinklered building with 3-phase power 1800 amp 480 volt. Set up for heavy manufacturing or warehouse with M1 zoning. There are six private offices, with large room for 9 cubicles, four restrooms, various test rooms, break/lunch room, 6 man doors, thirteen 16x14 roll up doors, One 16x13 roll up, 1 truck dock with 10x10 roll up door. Eave height 20ft, crown height 25ft., Currently occupied, can be shown by appointment. Available November 1, 2023. Base Rent: $26,050.50 per month NNN costs: $1,736.70 per month.
-
0BEDS
-
3.9ACRES
-
0BATHS
-
01/2 BATHS
-
34,734SQFT
-
$0$/SQFT
School Ratings & Info
Description
Large Industrial Warehouse conveniently located off of Highway 50 and Highway 341. Situated on 3.9 acres. Sprinklered building with 3-phase power 1800 amp 480 volt. Set up for heavy manufacturing or warehouse with M1 zoning. There are six private offices, with large room for 9 cubicles, four restrooms, various test rooms, break/lunch room, 6 man doors, thirteen 16x14 roll up doors, One 16x13 roll up, 1 truck dock with 10x10 roll up door. Eave height 20ft, crown height 25ft., Currently occupied, can be shown by appointment. Available November 1, 2023. Base Rent: $26,050.50 per month NNN costs: $1,736.70 per month.
© 2026 Northern Nevada Regional Multiple Listing Service® MLS. All rights reserved. Information is deemed reliable but is not guaranteed accurate by the MLS or Theresa Nelson Real Estate | Sierra Sotheby's International Realty. Real estate listings held by brokerage firms other than Theresa Nelson Real Estate | Sierra Sotheby's International Realty are marked with the BROKER RECIPROCITY logo or the BROKER RECIPROCITY thumbnail logo and detailed information about them includes the name of the listing brokerage. The data relating to real estate for sale on this web site comes in part from the BROKER RECIPROCITY Program of the Northern Nevada Regional MLS and is for consumers' personal, non-commercial use and may not be used for any purpose other than to identify prospective properties consumers may be interested in purchasing. Data last updated: 2026-03-14T09:19:37.577.